Indietro
Aggiungere alla selezione

Appartamento
Nizza Cimiez

  • Ref. FR4817136
  • 3 camere
  • 2 bagni
  • 114 m²
  • 730 000 €

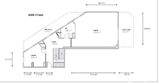
Appartamento - 4 stanze - 113.52 m2 - 730.000 € - In vendita

Cimiez-Scudéri - Nel cuore di un piccolo residence di lusso recentemente ristrutturato e dotato di piscina, scoprite questo luminoso appartamento duplex dallo stile simile a quello di una villa . Offre una qualità di vita eccezionale in un ambiente tranquillo con le sue 2 belle terrazze, ciascuna di 12 m², la sua vista aperta con scorcio di mare a sud e i suoi 2 grandi balconi esposti a est di 13 m² ciascuno.
Al piano superiore, un ingresso, una cucina indipendente, un WC per gli ospiti e un ampio soggiorno di 33 m².
Una bella scala in legno conduce al piano inferiore che comprende 3 camere da letto, 1 bagno con doccia, 1 bagno, ripostigli e 1 cabina armadio nella camera da letto principale.
Bellissimi pavimenti in parquet e aria condizionata nelle stanze esposte a sud completano questo splendido appartamento soleggiato e pieno di fascino.
Per il vostro comfort, un ampio garage chiuso e 2 cantine completano questa proprietà e un altro garage è disponibile in affitto nel residence per chi lo desiderasse.
Le informazioni sui rischi a cui è esposta questa proprietà sono disponibili sul sito georisques: georisques.gouv.fr.
Nessuna procedura in corso.
Co-esclusiva.

Stampare l'annuncio

Sommario

  • Locali 4 locali
  • Superficie 114 m²
  • Superficie totale 170 m²
  • Riscaldamento Elettrico
  • Acqua calda Caldaia
  • Condizione Buono stato
  • Piano
  • Esposizione Sud

Prestazioni

  • Allarme
  • Doppi vetri

Locali

  • 3 Camere da letto
  • 1 Garage
  • 1 Bagno
  • 1 Bagno con doccia
  • 2 Cantine
  • 1 Soggiorno 33 m²
  • 1 Terrazza 25 m²
  • 1 Balcone 26 m²

Efficienza energetica

Energia - Consumo convenzionale Energia - Stima delle emissioni

Cliccando su « Accetto », autorizzate l’utilizzo dei cookies per garantirvi una consultazione ottimale di questo sito.

Maggiori informazioni Accetto