Apartment
Nice Vieux Nice
- Ref. FR6390045
- 2 bedrooms
- 1 bathroom
- 49 m²
- 325,000 €
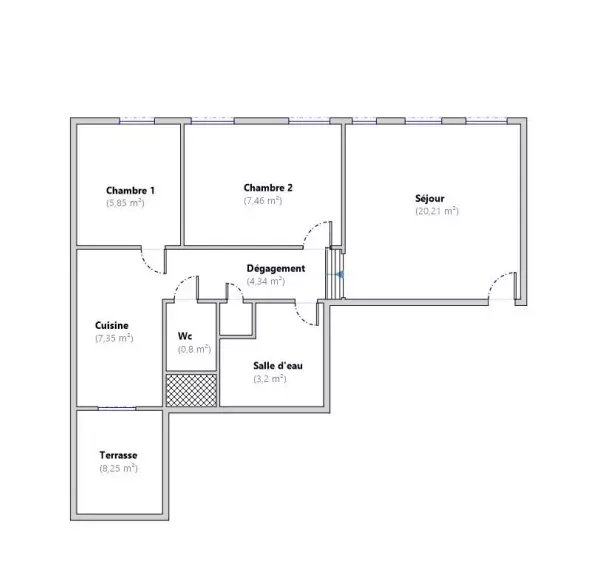
EXCLUSIVE Three-room apartment of 49 m² with terrace, located in the Old Town of Nice. If you love Old Nice and its authenticity, come discover this apartment full of charm and character, ideally located in the heart of the historic center of Nice.
In the heart of Old Nice, in a quiet and typical pedestrian street of the neighborhood, three-room apartment of 49 m² located on the 1st floor of a Niçois building full of character.
It consists of a beautiful 20 m² living room facing south, offering plenty of natural light, two bedrooms, a shower room, and a toilet. The apartment also benefits from a lovely quiet terrace overlooking the building's inner courtyard, a real asset in the very center of the historic district.
Features: reversible air conditioning, double glazing, bicycle storage.
Sold furnished and fully equipped, this property is turnkey: ideal for seasonal rental investment (Airbnb type) with excellent profitability, in an area with very high tourist demand throughout the year.
Sought-after location for its authenticity, vibrancy, and immediate proximity to shops, restaurants, public transport, tramway, and beaches.
Perfect for investors, a pied-à-terre, or a heritage investment on the Côte d’Azur.
Agency fees paid by the seller.
Full file, diagnostics, and information on the building are available upon request.
(Description reviewed and translated by AI)