Back
Add to selection

Apartment
Nice Cessole

  • Ref. FR5951906
  • 1 bedroom
  • 1 bathroom
  • 45 m²
  • 193,980 €

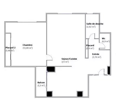
Apartment - 2 rooms - 45.42 m2 -

Spacious 2-room apartment Saint-Barthélemy

Come discover this elegant 45.42 sq. m apartment located in the sought-after Saint-Barthélemy district, close to all shops and just a 5-minute walk from the tram stop. Very well laid out, with a spacious living room and a large bedroom, this apartment has a quiet balcony overlooking the courtyard. A cellar completes this property.

Number of units: N/A. No legal proceedings to our knowledge.

Find information about potential natural risks on Géorisques.

(Description reviewed and translated by AI)

Print this ad

Summary

  • Rooms 2 rooms
  • Surface 45 m²
  • Hot water Boiler
  • Condition Excellent condition
  • Orientation East
  • View City

Services

  • Double glazing

Rooms

  • 1 Bedroom
  • 1 Lavatory
  • 1 Shower room
  • 1 Cellar
  • 1 Balcony 1.3 m²
  • 1 Equipped kitchen

Energy efficiency

Energy - Conventional consumption Energy - Emissions estimate

By clicking on "I agree", you authorize the use of cookies to ensure you get the best experience on this website.

Learn more I agree